振動放礦機是以振動電機為動力源利用安裝在振動電機主軸兩端的偏心塊在旋轉運動中所產生的離心力來得到激振力驅使振動放礦機臺面和物料做周期直線往復振動當放礦機體振動的加速度垂直大于重力加速度時機體中的物料被拋起并按照拋物線的軌跡向前跳躍運動拋起和下落在瞬間完成由于振動電機的連續振動放放礦機體也連續振動機體中的物料連續向前跳躍這樣就達到放礦和輸送礦石的目的.
振動放礦機通常情況下,礦石破碎均勻,塊度小,流動性好,可選用擺動式或波動式單質體振動放礦機。易結拱堵塞,需要二次破碎,則適用于橢圓振動型和定向振動型。
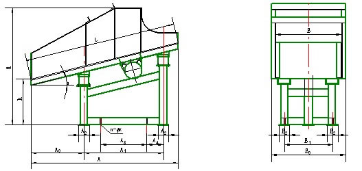
振動放礦機結構: 振動放礦機的結構如圖所示,主要由振動臺面、彈性元件,機架和振動電機構成。振動出礦機采用單臺振動電機為激振源。 振動放礦機使用維護: 正確使用與維護振動出礦機是保證振動出礦機長期正常運轉的重要因素。
特點:
1、節省能源、出礦效率高、出礦均勻且易控制;
2、設備制造簡單,安裝工程量小,成本較低;
3、由于振動大減少了懸拱、卡礦現象;
4、能有效地防止含水量大的礦石跑礦;
5、應用范圍廣,適應性強。
振動放礦機對環境條件要求如下:
1、環境溫度不大于+40℃
2、空氣相對溫度不大于90%
3、可用于多塵和臺極上載礦量有較大波動的場合。

















